cross

Odporučte inzerát svojmu známemu

Predaj| 4i RD s veľkou terasou, garážou a strategicky výbornou lokalitou na R7 (cca 2 min) – Holice, DS |Gofar |Exkluzívne

ID inzerátu  9719

cena

269 900 €

splátka hypotéky
714,00 €/mesiac
[?]
Cena nehnuteľnosti: 269 900 €
Vlastné zdroje (20%): 53 980 €
Splatnosť: 30 rokov
Úroková sadzba: 1.2 %
Mesašná splátka: 714 €

+421 948 759 382

Kontaktujte makléra

Realitná kancelária GOFAR exkluzívne ponúka na predaj moderný 4-izbový rodinný dom v pokojnej obci Holice, ktorý spája komfort rodinného bývania, výbornú dostupnosť do Bratislavy a Dunajskej Stredy a príjemné prostredie Žitného ostrova.
Je ideálny pre rodinu, ktorá hľadá moderné a bezstarostné bývanie. Osobitne je vhodný pre ľudí, ktorí denne dochádzajú do Bratislavy, Šamorína alebo Dunajskej Stredy a chcú mať rýchly prístup na R7, no zároveň pokojné bývanie v súkromí mimo ruchu mesta.

HLAVNÉ VÝHODY
• Extrémne rýchle napojenie na R7 (2 min), do BA 17min, do DS 10min
• Vyhľadávaná a pokojná lokalita Holice – Póšfa
• Moderná a praktická dispozícia - nepriechodné izby, ideálne pre rodinu s deťmi alebo home office.
• Vynikajúco oddelená denná a nočná časť
• Udržiavaná okrasná aj úžitková záhrada
• Priamy výstup na terasu z obývačky aj kuchyne – ideálne pre letné posedenia, grilovanie a prepojenie interiéru s exteriérom.
• Nadštandardné technické a funkčné zázemie – garáž, prístrešok pre autá, veľká krytá terasa a praktické úložné priestory (špajza, šatník).
• Príjemné rodinné bývanie v zeleni Žitného ostrova – rovinatá krajina, ticho a priestor na relax.
• Šport a aktívny životný štýl na dosah – Dunajská cyklotrasa, hrádza pri Dunaji, ideálne podmienky na bicykel, beh či prechádzky v prírode.
• Kompletná občianska vybavenosť v okolí – škola, škôlka, obchody a služby v blízkych obciach a mestách.

DETAIL NEHNUTEĽNOSTI
RODINNÝ DOM
Nehnuteľnosť: 4-izbový samostatne stojaci rodinný dom
Kolaudácia: 2015
Vlastníctvo: osobné
Stav: čiastočne zrekonštruovaný, udržiavaný
Charakteristika pozemku: rovinatý, celková výmera parciel cca 533 m²
Príjazdová cesta: asfaltová a betónová
Inžinierske siete: elektrina, verejný vodovod, plyn, žumpa (zavádza sa kanalizácia)
Úžitková plocha: 126,94 m² (z toho terasa 31,54 m²)
Počet izieb: 4 (obývacia izba + 3 spálne)
Počet kúpeľní: 1
Počet WC: 2 (v rámci kúpeľne + hosťovská na chodbe)
Stavebný materiál: keramické tváarnice hrúbky 300mm + kontaktná telpelná izolácia hrúbky 100mm
Strecha: valbová
Vykurovanie: podlahové elektrické DEVI
Ohrev vody: zásobníkový ohrievač
Okná: plastové s izolačným dvojsklom
Kuchyňa: umývačka riadu Bosch, digestor Mora, mikrovlná rúra a elektrická pec Electrolux, Kombinovaná vstavaná chladnička s mrazničkou Electrolux
Iné: alarm, kamerový systém, videovrátnik, dve lokálne rekuperácie RECUAIR, klimatizácia Samsung, krb s uzavretým ohniskom, narážaná studňa (hĺbka 12 m) napojená na dom a s možnosťou obecny vodovod vs studňu, závlaha, plynová prípojka, napojenie na kanalizaciu (v pirebehu niekoĺkých mesiacov)

GARÁŽ PRE OSOBNÉ AUTÁ

Stavba z roku: 2018
Stav: udržiavaný
Stavebný materiál: nosná zvislá konštrukcia, stropná aj trámová časť je drevená, základy betónové
Strešná krytina: pozinkovaný plech
Typ strechy: valbová
Výmera: 20,96 m²

PRÍSTREŠOK PRE AUTÁ

Stavba z roku: 2019
Stavebný materiál: drevená konštrukcia
Výmera: 25,09 m²

KRYTÁ TERASA

Stavba z roku: 2019
Pôvodná výmera: 17,75m2,
Nová výmera: 31,54 m²

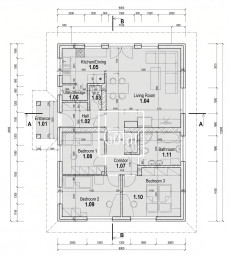
DISPOZÍCIA
Dom je riešený ako jednopodlažný, nepodpivničený objekt:
1.01 – Zádverie – 3,9 m², 1.02 – Zádverie – 4,9 m², 1.03 – WC – 1,55 m², 1.04 – Obývacia izba – 29,0 m², 1.05 – Kuchyňa – 7,2 m², 1.06 – Komora – 1,9 m², 1.07 – Chodba – 6,55 m², 1.08 – Izba – 8,8 m², 1.09 – Izba – 11,6 m², 1.10 – Izba – 13,2 m², 1.11 – Kúpeľňa – 6,8 m², 1.12 – Terasa – 31.54 m². Celkom – 126,94 m². Bližšie pôdorys. 

LOKALITA
Obec Holice patrí medzi vyhľadávané lokality najmä vďaka svojej strategickej polohe a výbornej dopravnej dostupnosti. Najväčším benefitom je bezprostredná blízkosť rýchlostnej cesty R7, ktorej nájazd sa nachádza priamo pri vstupe do obce. Vďaka tomu je Bratislava dostupná za cca 17 minút, Dunajská Streda za 10 minút a obľúbený Šamorín so športovým komplexom x-bionic® sphere len 5 minút jazdy autom – ideálne pre každodenné dochádzanie bez zdržania.

Veľkým benefitom je aj kompletná občianska vybavenosť – v obci nájdete novotvorené jasle, základnú a materskú školu, potraviny, poštu, banky, lekára aj ďalšie služby potrebné pre komfortný rodinný život.

Holice zároveň ponúkajú pokojné bývanie obklopené prírodou Žitného ostrova. Milovníci aktívneho oddychu ocenia blízkosť Dunajskej cyklotrasy, hrádze a množstvo možností na bicyklovanie, beh či prechádzky.

Táto lokalita je ideálnou kombináciou komfortného bývania, rýchlej dostupnosti a kvalitného priestoru na relax aj šport.

FINANCOVANIE
Kúpu je možné financovať aj prostredníctvom hypotekárneho úveru. Náš interný hypotekárny špecialista vám bezplatne pomôže vybrať najvýhodnejšie riešenie na mieru.
GOFAR je registrovaným finančným sprostredkovateľom v NBS. Služba hypotekárneho špecialistu je bezplatná.

CENA
Cena: 269 900 €
Nehnuteľnosť sa predáva čiastočne zariadená.

OBHLIADKY
Obhliadky sú možné aj cez víkend.

KONTAKT
Ing. Ladislav Szabo
mobil: +421 948 759 382
e-mail: ladislav.szabo@gofar.sk
web: www.gofar.sk

Realitná kancelária GOFAR je členom Realitnej únie SR a licencovanou kanceláriou NARKS. Zabezpečuje kompletný servis pri predaji nehnuteľnosti – právny servis, notársku úschovu, kataster aj odovzdanie nehnuteľnosti. Samozrejmosťou je aj bezplatné vybavenie hypotéky a poistenia prostredníctvom interného špecialistu. GOFAR je registrovaným finančným sprostredkovateľom v NBS.

Pomôžeme aj s predajom starého domu alebo bytu.

© Text a fotografie sú autorským dielom a majetkom realitnej kancelárie GOFAR.

Kraj Trnavský kraj
Okres Dunajská Streda
Obec Holice
Ulica
Kategória Domy a vily
Druh Rodinný dom
Úžitková plocha 127 m2
Poschodia 0
Balkóny 0
Loggie 0
Typ Predaj
E. certifikát
Parkovanie garáž

Maklér

Ing. Ladislav SZABO, PhD.

Ing. Ladislav SZABO, PhD.

Certifikovaný realitný maklér, Realitná únia SR

   Licencovaný realitný poradca, NARKS

+421 948 759 382 ladislav.szabo@gofar.sk
Slovensky | English | Magyarul | Česky | Pусски

Dohodnite si obhliadku

{! errorName !}
{! errorMail !}
{! errorName !}
{! errorName !}
{! errorMail !}
{! errorPhone !}
{! errorText !}
{! message !}